米兰体育官方网站 为啥越来越多人买“两梯两户”? 过来人: 居住差距太大了

近几年,随着房地产市场下行,不少人都在抱怨房贷月月还,房子却亏麻了,越住心里越没有底。
可从生活的角度来看,房子终究是用来住的,舒适性才是关键。
网友@樱桃小鑫:房子涨跌关我什么事,再大的问题也没有一顿火锅解决不了的,而这也是“两梯两户”给我的底气。

本期就来聊聊前段时间频繁登上热搜的“两梯两户”住宅,看看它都有哪些优缺点。
一、什么是“两梯两户”住宅?
简单来说,就是一层只有两户人家,并配备了两部电梯,且出了电梯门就是一块“前室”空间。

不过它还有一个更吸睛的叫法——“一梯一户”。
因为从住宅结构上来看,它和标准的“一梯一户”似乎并没有多大区别,都有一块“消防前室”空间。

而且,不只是“两梯两户”,有些11层的“一梯两户”住宅也会被售楼小姐姐吹成是“一梯一户”,让人听了就心动。

二、“两梯两户”住宅都有哪些优势?
1、私密性更好
相较于一梯一户,其实两梯两户的私密性也不差。
虽然一层有两户人家,但由于前室各设有一道常闭式防火门,两家的日常出入动线完全分离,所以生活中完全不会受到邻居的干扰。
{jz:field.toptypename/}
网友@boos豆儿:我家之前的房子是两梯四户,每天门口都人来人往,再加上邻居家的孩子喜欢在门口玩闹,安全感和私密性都大打折扣。
自从搬到两梯两户后,才知道什么叫清净。即便回家后大门常开,也不担心邻居经过,生活一下松弛了很多。

2、电梯出行更方便
高层住宅最大的痛点,就是随着入住时间的加长,电梯出行会越来越不方便,尤其是早晚高峰时间段,那叫一个折磨人。

而两梯两户因为单层住户少、电梯分摊压力小,极大改善了电梯出行难的问题,甚至比一梯一户住宅出行还要方便。

网友@山茬:我当初就是因为担心电梯出行难,才买的两梯两户。现在住了两年多,也验证了我当初的决定是对的。
比如在电梯维修保养期间,我就可以通过防火门坐对面电梯出行,再加上每层只有两户,日常出行基本不受影响。

3、前室空间可以利用
两梯两户最大的快乐,就是多了一块前室空间。
虽说这块空间是公共部分,但只要邻居不反对,不影响消防规范,物业多半也会“睁一只眼,闭一只眼”。

所以,我们完全可以将其合理利用起来。比如改造成一块外玄关区,既缓解了室内空间压力,又有了回家的仪式感。

网友@满满Man:当初买房就是看中了这块前室空间,milansports本着不影响消防的原则,就做了一组大鞋柜和一些简单装饰。
如今,鞋子、雨伞、快递等一些杂乱,统统都可以留在门外,不仅家里清爽了许多,生活也更加舒适、从容了。

4、通风和采光更理想
由于一层只有两户,所以两梯两户住宅,往往都是边户。
所带来的结果,就是采光和通风条件,明显要优于其它住宅,确保室内阳光充足、空气流通顺畅,居住体验自然也就更好。

网友@花花日常:今日份的阳光是两梯两户给的,哪怕是4层,哪怕窗外是楼景,也丝毫不影响室内的采光。
每天坐在阳光下喝茶、看书或者带孩子做手工,都觉得心情特别舒畅,或许这就是家的意义和温度。

三、“两梯两户”住宅有哪些痛点?
1、公摊面积较大
正因为这种住宅一层只有两户,两部电梯,以及一块前室空间,所以公摊面积会比其它住宅大。
比如网友@小牛面包,建筑面积133㎡的房子,公摊面积就占到了32㎡,无形中增加了购房成本。

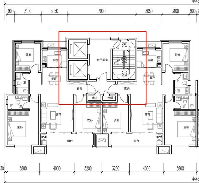
不过最让人头疼的,还是那种“合用前室”结构的两梯两户,看似有很大一块空间,但想利用起来却会受到很多限制。

2、居住成本较高
由于两梯两户住宅的稀缺性,这类小区往往会以中高端定位,除了房价之外,物业费和停车费也相对较高。

所带来的结果,就是居住成本会整体偏高,对于预算有限的家庭来说,需要提前做好经济规划。
3、容易踩到户型坑
如上面所说,不是所有的两梯两户住宅都有一块独立的前室,还有不少楼盘会设计“合用前室”。

这就意味着前室空间不仅无法合理利用,日常生活中还可能受到邻居干扰,从而对居住体验产生影响。

除此之外,还有一些两梯两户住宅,虽然分别设置了前室,但楼梯处却并没有安装防火门,导致两边可以自由出入,私密性受影响。

总体来说,“两梯两户”住宅在各方面都有不错的优势,也能提供更舒适的居住体验,但在选择时还是要擦亮双眼,避免被噱头和宣传迷惑,给后期生活造成困扰。
(图片源于网络,侵权即删)